l’Atelier de l’Ours
_
Suisse Normande
11, Place Saint-Vigor
61430 Athis-de-l’Orne
_
Perche Vendômois
Chemin de Cran
41800 Houssay
_
contact@atelierdelours.fr

Renaturation de la cour de l’école Louis Forton
Agir collectivement sur les espaces de vie de demain.
palmarès des jeunes urbanistes, paysage, maîtrise d'oeuvre, bureau d'études, mobilier, signalétique, agriculture, innovation sociale, urbanisme, architecture, agriculture périurbaine, espace public
2054
wp-singular,portfolio_page-template-default,single,single-portfolio_page,postid-2054,wp-theme-stockholm,wp-child-theme-stockholm-child,stockholm-core-2.4.8,select-child-theme-ver-1.1,select-theme-ver-9.14.3,ajax_fade,page_not_loaded,menu-animation-underline,side_area_over_content,,qode_menu_,wpb-js-composer js-comp-ver-8.6.1,vc_responsive

Renaturation de la cour de l’école Louis Forton

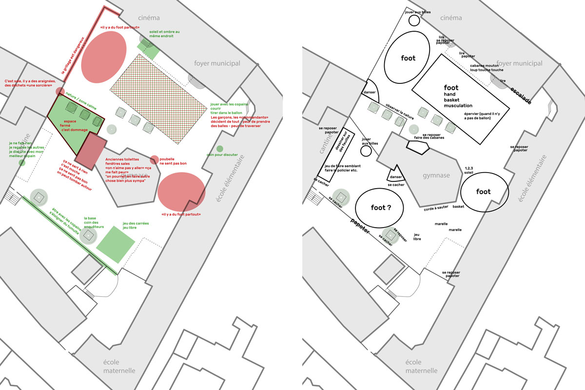
Aux côtés du Parc Naturel Régional Normandie Maine, l’Atelier accompagne la communauté de communes des sources de l’Orne ainsi que l’équipe pédagogique à la renaturation de la cour de l’école maternelle et primaire de l’école Louis Forton, une cour entièrement en enrobé aujourd’hui. Une démarche concertée, prenant différents formats (avec les enfants, l’équipe pédagogique et les techniciens et élus de CCSO), a permis d’aboutir à un état des lieux sensible et technique. La prochaine étape permettra de définir précisément un plan programme répondant aux enjeux de captation de l’eau, de biodiversité et de diversification des usages.

Maîtrise d'ouvrage

Parc naturel régional et Géoparc mondial Unesco Normandie-Maine, Communauté de commune des sources de l’Orne et commune de Sées

Équipe

Atelier de l’Ours

Mission

Maitrise d’œuvre partielle (AVP puis accompagnement sur des petits travaux)

Statut

En cours depuis septembre 2025

Contexte

3000 m² à Sées (61)